$399,000 Sale
Listed 3 days ago
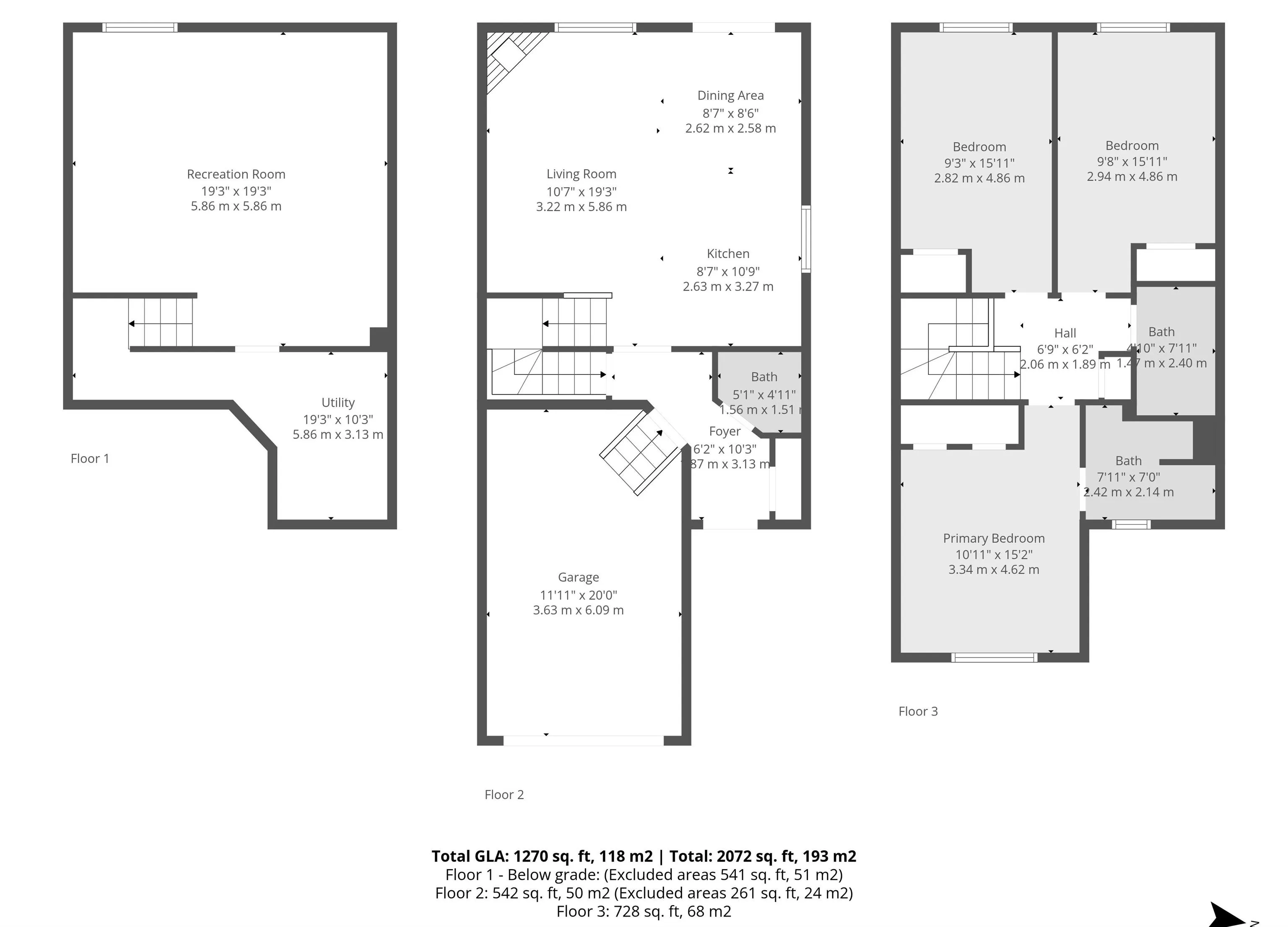
120 MAGRATH Road
· 3
· 2.50
· 1
· 1270.15
Key Facts
Key facts for 120 MAGRATH Road
Property Type
House, 2 Storey
Parking
Front Drive Access,Single Garage Attached 1 garage, Front Drive Access,Single Garage Attached 2 parking
MLS®
E4461533
Size
1270.15 sqft
Basement
Full,Finished, Fully Finished
Listed on
-
Lot size
-
Tax
-
Days on Website
-
Year Built
2006
Maintenance Fee
$310 /mo
Description
Welcome to Unit 32 in Magrath Heights, a beautifully upgraded 3-bedroom, 2.5-bath half-duplex with a fully finished basement. This bright and inviting home has been refreshed with new flooring (2025), paint(2025), lighting(2025), and quartz countertops (2025), plus professional cleaning throughout. ...The kitchen features stainless steel appliances, including a newer stove (2022) and microwave (2021), with ample counter and cupboard space. Upstairs, the primary suite offers a full ensuite, alongside two additional bedrooms and a second full bath. The finished basement provides flexible space for a home office, gym, or media room. Complete with a single attached garage, and a prime location close to Nellie Carlson K-9 School, recreation centre, shopping, parks, trails, and MacTaggart Sanctuary, with quick access to Whitemud and Anthony Henday.
Similar Properties (No results)
Courtesy of: Maggie Wang, Initia Real Estate